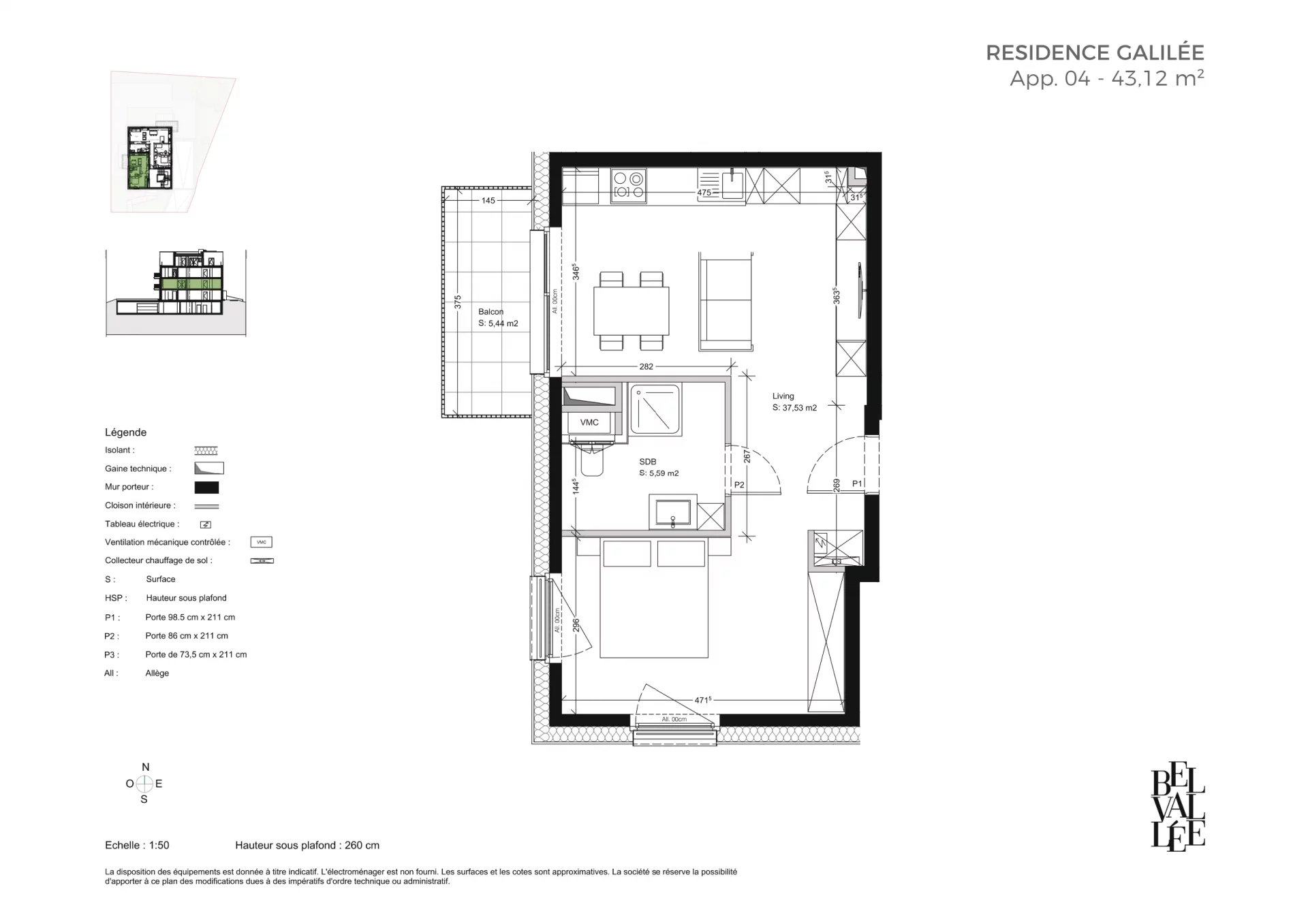
Appartement
44.67m²

Descriptif

Belvaux

BELVALLEE-GALILEE-APP. 3.4

DPE : ABA+

417 397,99 €

Pour plus d’informations sur ce bien, vous pouvez prendre contact avec

Sabrina FURINI

DÉBUT DE LA CONSTRUCTION AU PRINTEMPS 2026 !

Architecte : Beng Architectes Associés

_____

Découvrez ce beau studio situé au sein d’une résidence contemporaine de seulement 7 logements, nichée au cœur du quartier résidentiel prisé Belvallée à Belvaux.

Les atouts du bien :

• Emplacement stratégique : à mi-chemin entre Belval et les grands axes routiers.

• Cadre de vie agréable : environnement calme et verdoyant, à deux pas du parc du Gaalgebierg.

• Investissement idéal : excellent potentiel locatif dans une zone en plein développement.

• Espace extérieur privatif.

• Confort inclus : cave privative + 1 emplacement de parking intérieur.


Prix affiché TVA 3 %
Prix TVA 17 % : 449.982,97.-€

_____

Ce qui fait la différence :

• Frais d'acte réduits (calcul sur valeur terrain + Bëllegen Akt)
• Prix incluant parking intérieur + cave (pas d’indexation)
• Début des travaux : printemps 2026
• Quartier résidentiel proche Belval & toutes commodités
• Deux résidences du projet déjà en construction, confirmant l’intérêt pour le quartier

_____

Intéressé(e) ? Contactez Sabrina FURINI :
Tél. : (+352) 691 112 110
Mail : sabrina.furini@tracol.lu

nos biens similaires