Maison
210m²
3 chambres
1 Terrasse

Descriptif

Niederkorn

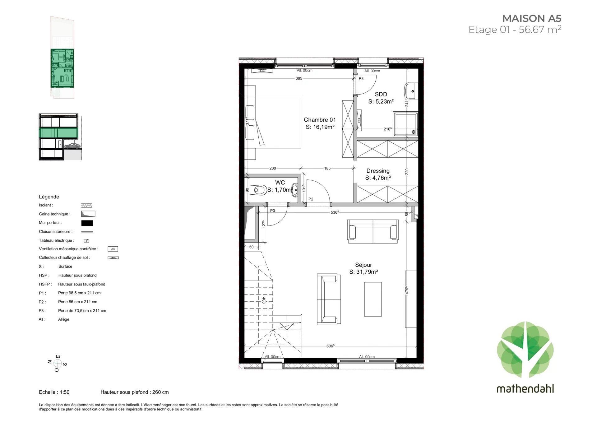
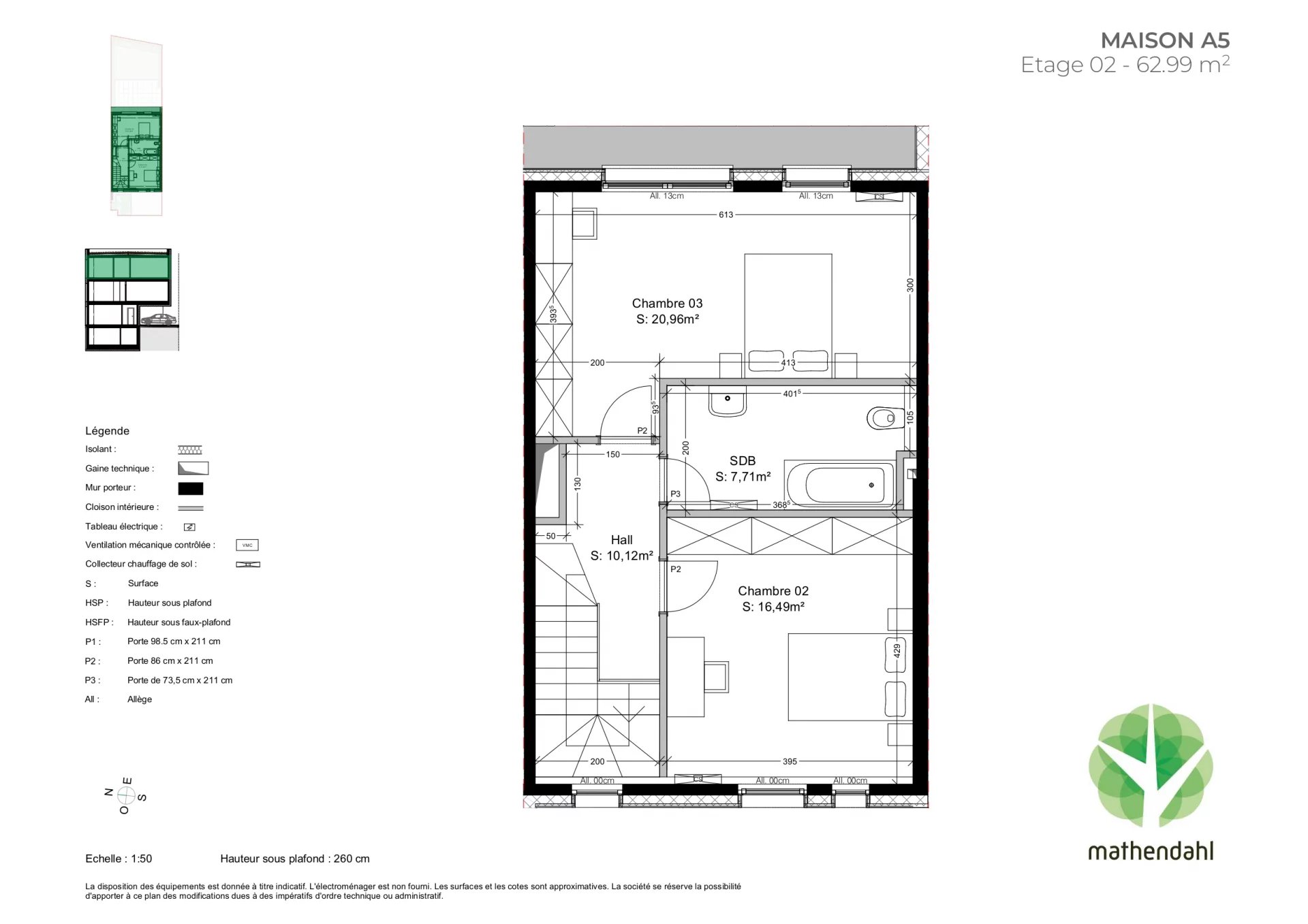
MATHENDAHL - MAISON A5

DPE : AAA

920 046,00 €

Pour plus d’informations sur ce bien, vous pouvez prendre contact avec

Afafe FAHI

Nouvelles maisons à vendre – Lotissement Mathendahl à Niederkorn

Découvrez cette maison unifamiliale d'une surface totale de 210 m² (162 m² habitable), idéalement située dans le nouveau quartier résidentiel Mathendahl.
Nichée au sein d’un ensemble harmonieux de 5 maisons, cette propriété offre un cadre de vie à la fois verdoyant et proche de toutes les commodités.

Les points forts :

• Cadre de vie pratique et agréable, parfait pour les familles.

• Classe énergétique AAA – haute performance thermique pour un logement économique et écologique.

• Disposition intelligente : Grand sous-sol avec nombreux espaces de rangement, salle à manger/cuisine lumineuse ouvert sur le jardin, salon intimiste à l’étage, suite parentale spacieuse ainsi que 2 chambres supplémentaires et 2 salles de bains.

Prix affiché TVA 3 % (sous conditions)
Prix TVA 17 % : 970.046 €


Intéressé(e) ? Contactez-nous !
📞 Afafe FAHI – (+352) 691 112 111
📧 afafe.fahi@tracol.lu

nos biens similaires